EN RENTABILIDAD: oficinas
Oficina en venta situada en el emblemático Edificio Norte de las Torres Trade de Barcelona.
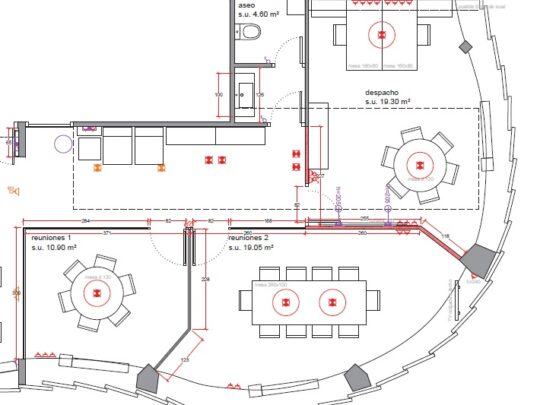
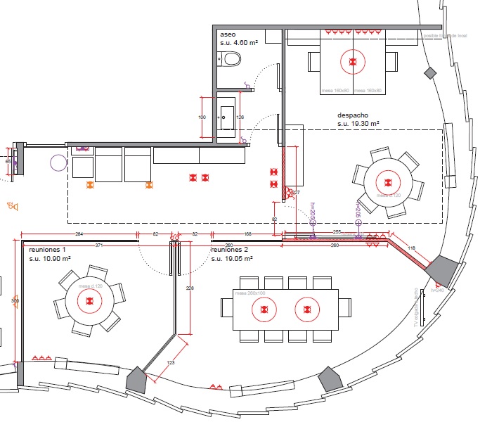
La oficina tiene 82m2, es exterior y luminosa, gracias a su fachada acristalada.
Está distribuida en diferentes despachos algunos con divisoria de cristal y un aseo.
Cuenta con un sistema de climatización de aire acondicionado y calefacción general de las Torres Trade.
El Edificio dispone de 2 ascensores, servicio de conserjería y vigilancia 24h.
La ubicación es inmejorable, en pleno centro de negocios de la ciudad, junto a la Avenida Diagonal y la Gran Vía de Carlos III que conecta el centro directamente con el Aeropuerto del Prat, justo al lado de las Torres de la Caixa de la Avenida Diagonal, del Pedralbes Center y Corte Inglés, a pocos minutos del Centro Comercial l´Illa y con muy buena comunicación con el transporte público, la Estación de Sants, el metro (L3 – Maria Cristina), autobuses con conexión también al área metropolitana y tranvía (T1, T2).
